4768 Rue des Hydrangées
$3,200/M
Longueuil (Saint-Hubert), Montérégie, QC J3Y0G6
Maison à étages | MLS: 9662060
Description
Magnifique maison à étage, située dans un secteur calme et recherché. Comprends 4 CAC, 2 SDB et une salle d'eau. Le RDC vous accueille avec une vaste pièce incluant le salon et la SAM à aires ouvertes très lumineuses, une cuisine moderne et une salle d'eau. À l'étage se trouve 3 CAC spacieuses et une SDB, au sous-sol vous trouverez une salle familiale et une CAC et une SDB supplémentaires. La cour arrière est de belle dimension et entièrement clôturée avec une grande terrasse, parfaite pour recevoir famille et amis. Localisée près des écoles, cégep, université, parcs, transports en commun et accès rapide et faciles aux autoroutes 10 et 30.
Superbe maison familiale dans un secteur recherché et
paisible
Découvrez cette magnifique maison à étages, idéalement
située dans un quartier calme et très convoité -- parfaite
pour les familles à la recherche de confort, d'espace et de
tranquillité.
Cette propriété spacieuse offre :
4 chambres à coucher, dont 3 à l'étage et 1 au sous-sol
2 salles de bain complètes et 1 salle d'eau
Un rez-de-chaussée lumineux à aire ouverte, avec un salon
et une salle à manger accueillants, parfaits pour la vie de
tous les jours et les réceptions
Une cuisine moderne et fonctionnelle
Un sous-sol aménagé incluant une grande salle familiale,
une chambre supplémentaire et une salle de bain -- idéal
pour invités ou adolescents
À l'extérieur, profitez pleinement d'une cour arrière
clôturée de belle dimension, agrémentée d'une grande
terrasse : un espace convivial pour vos repas d'été,
barbecues ou moments de détente en famille.
Emplacement de choix, à proximité de toutes les commodités :
Écoles, cégep et université
Parcs et espaces verts
Transports en commun
Accès rapide aux autoroutes 10 et 30
Une maison clé en main, prête à accueillir votre famille.
Ne manquez pas cette opportunité !
Inclus : Luminaires, stores, tringles, thermopompe murale.
Exclus : Tous les électroménagers, chauffage, electricite, eau chaude, assurance locataire, paysagement, deneigement
Location
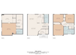
Détails des pièces
| Chambre | Dimensions | Niveau | Revêtement |
|---|---|---|---|
| Hall d'entrée | 2.60 x 1.76 M | Rez-de-chaussée | |
| Salon | 5.99 x 4.46 M | Rez-de-chaussée | Bois |
| Salle à manger | 2.94 x 3.22 M | Rez-de-chaussée | Bois |
| Cuisine | 3.6 x 3.22 M | Rez-de-chaussée | Céramique |
| Salle d'eau | 1.52 x 2.9 M | Rez-de-chaussée | Céramique |
| Chambre à coucher | 3.39 x 3.12 M | 2ième étage | Bois |
| Chambre à coucher | 3.68 x 3.30 M | 2ième étage | Bois |
| Chambre à coucher principale | 3.75 x 4.1 M | 2ième étage | Bois |
| Salle de bains | 3.83 x 2.79 M | 2ième étage | Céramique |
| Salle familiale | 3.93 x 3.12 M | Sous-sol | Plancher flottant |
| Chambre à coucher | 5.26 x 4.45 M | Sous-sol | Plancher flottant |
| Salle de bains | 2.38 x 1.76 M | Sous-sol | Céramique |
| Rangement | 2.38 x 5.34 M | Sous-sol |
Caractéristiques
| Sous-sol | 6 pieds et plus, Totalement aménagé |
|---|---|
| Mode de chauffage | Air soufflé, Plinthes à convection |
| Proximité | Autoroute/Voie rapide, Cegep, École primaire, École secondaire, Garderie/CPE, Parc-espace vert, Réseau Express Métropolitain (REM), Transport en commun, Université |
| Revêtements | Brique, Vinyle |
| Équipement disponible | Climatiseur mural, Échangeur d'air, Thermopompe murale |
| Aménagement du terrain | Clôturé, Paysager |
| Salle de bains/salle d'eau | Douche indépendante |
| Énergie pour le chauffage | Électricité |
| Stationnement | Extérieur |
| Type de fenêtre | Manivelle, Porte-fenêtre |
| Système d'égouts | Municipal |
| Approvisionnement en eau | Municipalité |
| Allée | Pavé uni |
| Topographie | Plat |
| Fenêtres | PVC |
| Zonage | Résidentiel |
